
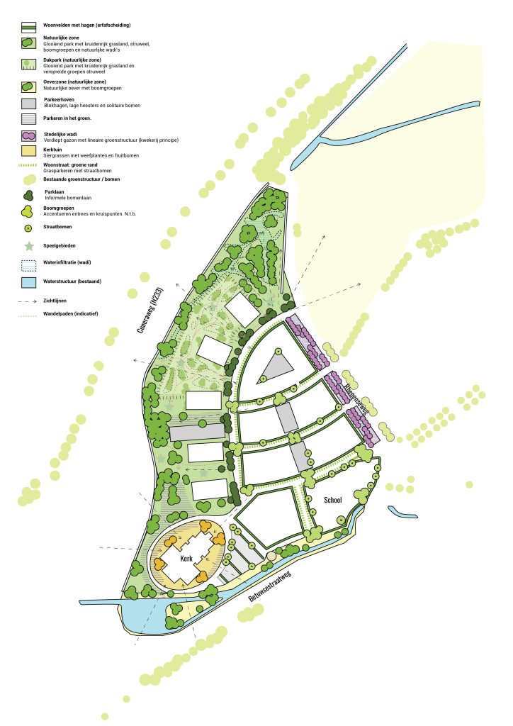
Kesteren Woongebied De Hoge Wei
Rewilding als nieuwe standaard?

Oranjeplantsoen Diemen
Eenvoudige ingrepen met facelift-effect

De Pas Winterswijk
Bloemkool nieuwe stijl

De Tuinen van Sandoel
De groene schakel

Ooglijdersgasthuis Utrecht
Historische woonomgeving

Dichteren, Doetinchem
Landschappelijk wonen

Deltakwartier Arnhem
Stedelijke herontwikkeling

De Hoef Alkmaar
De klimaatadaptieve wijk





