“Zitten wij niet te ver weg voor Buro Topia?”
Nee hoor, onze opdrachtgevers komen uit heel Nederland. Van Groningen tot Roosendaal en van Winterswijk tot Amsterdam. Klik op de afbeeldingen voor onze projecten.





Plein gemeentehuis Lochem
Stenen eruit, planten erin.
Residence Dishoek
Stedenbouwkundig plan vakantiepark
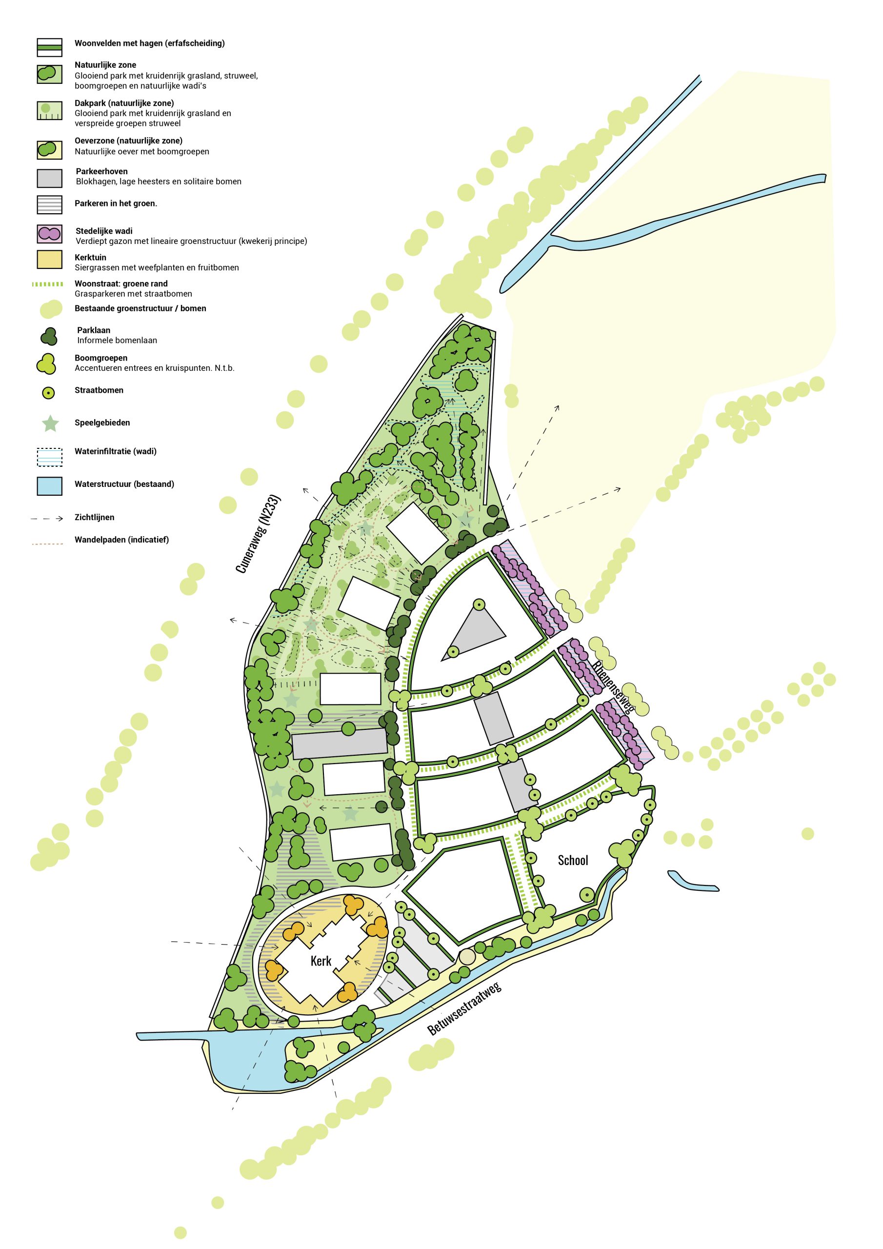
Noordoostcluster USP
Masterplan voor de campus
Drifttuinen Utrecht
Reconstructie historische tuinen
Padbroek Cuijk
Vitalisering woonwijk
Zuidspoor Zevenaar
Kwaliteitsimpuls bestaand bedrijventerrein
Molenveld Winterswijk
Landschapsplan; nieuwe bestemming voor een oude groeve
Project Ecologische verbindingszone Utrecht Science Park Amelisweerd
Van Oostbroek naar Kromme rijn
IKC Gendringen
Structuurplan nieuw schoolgebouw
Politiekantoor Zeeburg
Advies natuurinclusief kantoor
Oranjebuurt Bunnik
Voorlopig ontwerp voor de wijk
Zuidlaren
Visie voor het dorpscentrum
Chaam
Ontwerp voor de hoofdstraat
Sportlaan Udenhout
Klimaatdaptieve herinrichting woonwijk
De Johanna Utrecht
Hoogbouw in het landschap
Noordwestcluster USP
Masterplan voor de campus
Ecopark Emmeloord
Masterplan bedrijventerrrein
Centrum Ugchelen
Herinrichring centrumgebied
Vogelbuurt Driel
Herinrichting woonstraten
Schoolplein Slochterwaard
Multifunctioneel schoolplein
Begraafplaats Sliedrecht
Groene inpassing uitbreiding begraafplaats
Veestraat Tilburg
Herinrichting woonstraat
Oploo
Herinrichting woonwijk
Kop van Tolkamer
Bedrijvenpark Venekoten
Revitalisering bedrijventerrein
Dorpsstraat Beekbergen
Herinrichting dorpsstraat
Zutphensestraat Apeldoorn
Ontwerp stedelijke ontsluitingsweg
De Veste
Inpassing nieuwbouw
De Bongerd Doetinchem
Plein voor het wijkcentrum
Graaf Hendrikstraat Braamt
Krimpgebied in ontwikkeling
Babborgaplein
Plein voor het wijkcentrum
Plein 0313
Multifunctioneel sportplein
Drie-Eenheid Velp
Meeschrijven aan de geschiedenis


Project Cityring/Parkring Tilburg
Nieuwe stedelijke vernieuwing: minder auto, meer groen en meer langzaam verkeer
Project bekijken





Energielandschap Utrecht Science Park
ontwerpend onderzoek
























